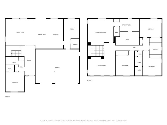
28667 Clearview, Murrieta, CA 92563
$799,900 LOGIN TO SAVE
28667 Clearview, Murrieta, CA 92563
Bedrooms: 5
span widget
Bathrooms: 3
span widget
span widget
Area: 3401 SqFt.
Description
Gorgeous “Model Perfect” Murrieta 5 Bedroom Home (possible 7 bedrooms) with Private "Pool Size" Yard backing to Open Space for Serene Views and PRIVACY, No neighbor behind this home! Location, Location, Location! NO HOA, OWNED SOLAR. This Exceptional Home has lots of Natural Lighting and has been Professionally Landscaped and Features a Formal Entry, 5 Large Bedrooms, Main Floor Bedroom & Full Bathroom, Main Floor Den/Office (possible 6th bedroom), Large Loft (possible 7th bedroom), plus Expansive Great Room with Spacious Living Room, Kitchen, Dining Area and Luxury Vinyl Plank Flooring Throughout the entire house! The Open Concept Kitchen is an Entertainers Dream with Upgraded Cabinets, Granite Counters, Custom Tile Back Splash, Stainless Steel Appliances, Impressive Island with extra storage and seating! The Walk in Pantry has Custom Built-ins for all your storage needs. The Luxurious Master Bedroom has a Large En Suite Bathroom with Large Soaking Tub, Walk in Shower, Double vanity, Walk in Closet with Custom Built-in Organizers. All additional Guest Rooms are Very Large and have Custom Built-in Closet Organizers and All bathrooms have Upgraded Tile and Cabinets. The Cozy Loft is an added bonus and could be a 7th bedroom! The Great Room and Dining Room have 3 Sets of French Doors that lead out to the "Private " Back Yard that has been Professionally Landscaped with a Large Custom Patio, Insulated Aluminum Patio Cover, Remote Controlled Sun Shades, Custom Pavers, Custom Lighting, Fountains, Vibrant flowers, Plants, Trees. This Meticulously Maintained Yard is VERY Private, backs up to a Nature Preserve and is Perfect for Relaxing or Outdoor Gatherings. The 3 Car Garage has been wired for an EV charger, has a Utility Sink, Tankless Water Heater and Plenty of Room for Storage! The Owned Solar will provide Energy Cost Savings! The Front Driveway is Over Sized and can accommodate a lot of Extra Parking! This Amazing home is located near Costco, Super Target, Shopping, Restaurants, Schools, Parks, Hospitals and the 215 & 15 freeways for an easy commute. This Home is Stunning and Ready to Enjoy!!
Features
- 0.17 Acres
- 2 Stories
Listing provided courtesy of Elizabeth Locascio of RE/MAX Platinum Realty. Last updated 2025-10-13 08:18:29.000000. Listing information © 2025 .

This information is deemed reliable but not guaranteed. You should rely on this information only to decide whether or not to further investigate a particular property. BEFORE MAKING ANY OTHER DECISION, YOU SHOULD PERSONALLY INVESTIGATE THE FACTS (e.g. square footage and lot size) with the assistance of an appropriate professional. You may use this information only to identify properties you may be interested in investigating further. All uses except for personal, non-commercial use in accordance with the foregoing purpose are prohibited. Redistribution or copying of this information, any photographs or video tours is strictly prohibited. This information is derived from the Internet Data Exchange (IDX) service provided by Sandicor®. Displayed property listings may be held by a brokerage firm other than the broker and/or agent responsible for this display. The information and any photographs and video tours and the compilation from which they are derived is protected by copyright. Compilation © 2025 Sandicor®, Inc.
Copyright © 2017. All Rights Reserved