26338 Valencia, Loma Linda, CA 92354
$1,200,000 LOGIN TO SAVE
26338 Valencia, Loma Linda, CA 92354
Bedrooms: 7
span widget
Bathrooms: 5
span widget
span widget
Area: 4122 SqFt.
Description
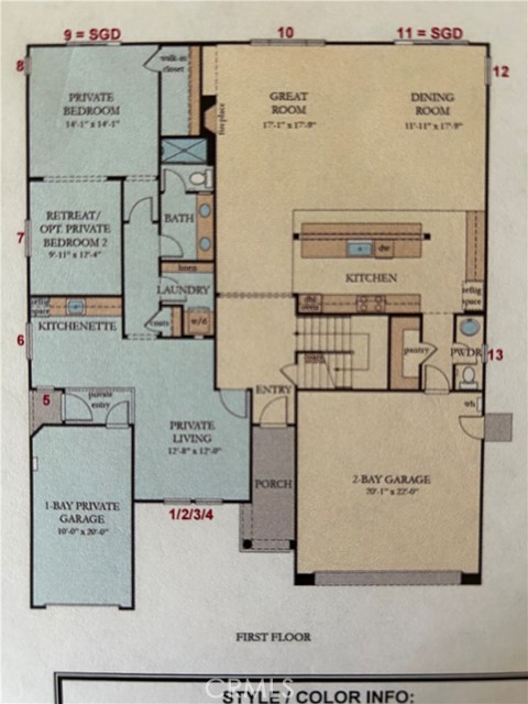
Rare chance to own a popular Lennar Next-Gen design home. The main house comes with 5 bedrooms 3.5 bath, 2-car garage, 3187 sqft; the permitted ADU or Next-Gen unit is 2 bedrooms 1 bath, 1 car-garage 935 sqft. Entrance, garage, and back yard of the ADU unit are separated with the main house. It could become a perfect place for a rental or for multiple-generations to live together. When you enter the Main House front door, an open and bright grant room with family, kitchen, and dining combo open your eyes. Plenty of cabinets and large pantry for the storage. Walking up to the second floor, a huge den for the family members gathering. Left hand side is master bedroom suite; the right and side has three guest bedrooms and the 5th bedroom has its own bathroom. The ADU unit entrance at the side of the house, stylish designed kitchen. A refrigerator and stackable washer and dryer are included in the sale. Large Laundry room with shelves; spacious bathroom with double sinks and big shower room. Back bedroom comes with a walk-in closet and open to a private back yard. Flat Lot and dry landscaping, new sod. Close to Loma Linda University, VA. One of the most popular neighborhoods near barton road.First time the same floor plan house on the market. Don't miss the chance.
Features
- 0.18 Acres
- 2 Stories
Listing provided courtesy of Iris Ouyang of Realty Masters & Associates. Last updated 2025-10-16 08:19:12.000000. Listing information © 2025 .

This information is deemed reliable but not guaranteed. You should rely on this information only to decide whether or not to further investigate a particular property. BEFORE MAKING ANY OTHER DECISION, YOU SHOULD PERSONALLY INVESTIGATE THE FACTS (e.g. square footage and lot size) with the assistance of an appropriate professional. You may use this information only to identify properties you may be interested in investigating further. All uses except for personal, non-commercial use in accordance with the foregoing purpose are prohibited. Redistribution or copying of this information, any photographs or video tours is strictly prohibited. This information is derived from the Internet Data Exchange (IDX) service provided by Sandicor®. Displayed property listings may be held by a brokerage firm other than the broker and/or agent responsible for this display. The information and any photographs and video tours and the compilation from which they are derived is protected by copyright. Compilation © 2025 Sandicor®, Inc.
Copyright © 2017. All Rights Reserved