137 Trumpet Flower, Irvine, CA 92618
$3,750,000 LOGIN TO SAVE
137 Trumpet Flower, Irvine, CA 92618
Bedrooms: 4
span widget
Bathrooms: 4
span widget
span widget
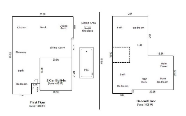
Area: 2844 SqFt.
Description
Fully upgraded and masterfully crafted, this extraordinary Portola Springs residence commands a premier elevated lot with panoramic, unobstructed city lights, sunset, and mountain views enjoyed from every bedroom, the kitchen, and the California Room. This refined home offers 4 bedrooms, 4 baths, and a loft, with a desirable main-level suite. The open layout features 10' ceilings, sophisticated designer finishes, and a chef-inspired kitchen appointed with KitchenAid® appliances, quartz countertops, a custom backsplash, a spacious walk-in pantry, and an under-sink filtration system. The outdoor environment delivers the essence of a private luxury resort. A permitted, upgraded swimming pool and an elegant fire pit are perfectly positioned to capture the sweeping views, creating an atmosphere of serenity and elevated living. The permitted California Room, equipped with an automatic retractable awning, enhances year-round indoor–outdoor enjoyment, while vaulted ceilings and expansive sliding doors amplify natural light and openness. A rare and highly valuable feature of this property is that the private road directly in front of the garage is included within the lot, providing exceptional privacy and exclusivity. It is also one of the few homes in the community with its own front driveway. Located within the award-winning Irvine Unified School District, this residence offers an unparalleled combination of luxury, privacy, and premier positioning within one of Irvine’s most sought-after neighborhoods.
Features
- 0.11 Acres
- 2 Stories
Listing provided courtesy of Kenneth Park of Newline Realty. Last updated 2025-12-29 09:15:49.000000. Listing information © 2025 .

This information is deemed reliable but not guaranteed. You should rely on this information only to decide whether or not to further investigate a particular property. BEFORE MAKING ANY OTHER DECISION, YOU SHOULD PERSONALLY INVESTIGATE THE FACTS (e.g. square footage and lot size) with the assistance of an appropriate professional. You may use this information only to identify properties you may be interested in investigating further. All uses except for personal, non-commercial use in accordance with the foregoing purpose are prohibited. Redistribution or copying of this information, any photographs or video tours is strictly prohibited. This information is derived from the Internet Data Exchange (IDX) service provided by Sandicor®. Displayed property listings may be held by a brokerage firm other than the broker and/or agent responsible for this display. The information and any photographs and video tours and the compilation from which they are derived is protected by copyright. Compilation © 2025 Sandicor®, Inc.
Copyright © 2017. All Rights Reserved




































