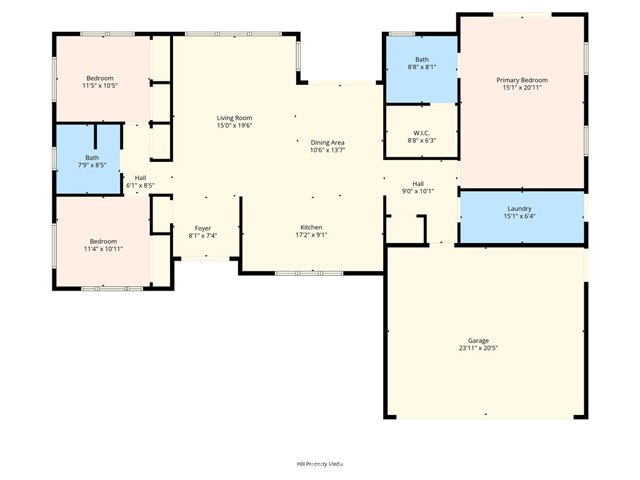
433 Valley View, Paradise, CA 95969
$505,000 LOGIN TO SAVE
433 Valley View, Paradise, CA 95969
Bedrooms: 3
span widget
Bathrooms: 2
span widget
span widget
Area: 1962 SqFt.
Description
Priced to sell! This brand-new 1,962 sq ft home with 3 bedrooms and 2 bathrooms is move-in ready. You’ll notice the quality construction the moment you walk in. One of the best features is all the storage—there’s a coat closet by the front door and a linen closet down the hall. The gorgeous kitchen boasts plenty of cabinets, a 7' x 3' island, quartz countertops, a farmhouse sink, THOR appliances, and loads of natural light, making it perfect for entertaining. A walk-in pantry sits just off the kitchen, and a sliding door from the dining area brings the outdoors in. The laundry room offers more cabinets, a sink, and outdoor access. The main bedroom has a sliding glass door to the back patio, a spacious ensuite with a large tiled shower, dual-sink vanity, and a walk-in closet. The guest bathroom features a bathtub/shower combo and dual-sink vanity. The fenced backyard has space for a shop or pool. New septic tank and leach fields.
Features
- 0.43 Acres
- 1 Story
Listing provided courtesy of Peggy Gaddini of Ironwood Real Estate. Last updated 2026-03-30 08:16:24.000000. Listing information © 2025 .

This information is deemed reliable but not guaranteed. You should rely on this information only to decide whether or not to further investigate a particular property. BEFORE MAKING ANY OTHER DECISION, YOU SHOULD PERSONALLY INVESTIGATE THE FACTS (e.g. square footage and lot size) with the assistance of an appropriate professional. You may use this information only to identify properties you may be interested in investigating further. All uses except for personal, non-commercial use in accordance with the foregoing purpose are prohibited. Redistribution or copying of this information, any photographs or video tours is strictly prohibited. This information is derived from the Internet Data Exchange (IDX) service provided by Sandicor®. Displayed property listings may be held by a brokerage firm other than the broker and/or agent responsible for this display. The information and any photographs and video tours and the compilation from which they are derived is protected by copyright. Compilation © 2025 Sandicor®, Inc.
Copyright © 2017. All Rights Reserved








































































